C6/L126 Tokyoβ 井荻4

入居可
定借(1年)
空室9

写真のベッドや家具は、実際の部屋のものと異なる場合があります。

人気の西武新宿線。高田馬場18分、西武新宿21分&池袋30分です

西武新宿線 上井草駅 徒歩14分

専門スタッフが週に最低1回、共用部分を清掃します。 シェアハウスですので、個室スペース以外は全て共用です。キッチン、洗濯機、シャワー、Wi-Fi等はご自由にお使いください。全て無料です。 全19部屋の2階建て。全室鍵付き個室&プライベートをきちんと守れます。

【海外の方へ】当社には英語中国語韓国語ベトナム語に堪能なスタッフが多数おります。

家賃個室 個室(シングル) 43,500円 男女共用
契約形態 定借(1年)
共益費 15,000円
システム利用料 1,500円(税込み) ※日割計算は行いません。
事務手数料 30,000円(税込み)
礼金 / 敷金 0ヶ月 / 0ヶ月
退去費用 16,500円(税込み)
再契約手数料 11,000円(税込み)
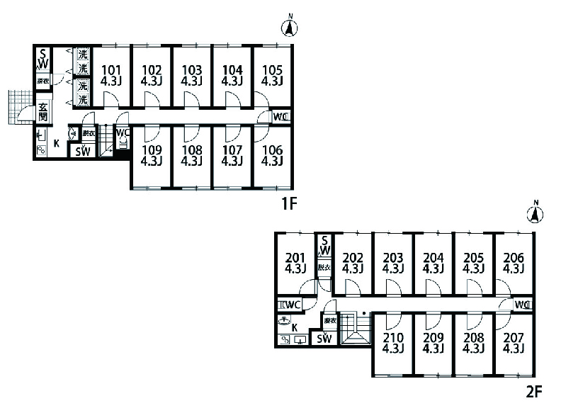
部屋数 全19室
共用設備 キッチンキッチン トイレトイレ シャワーシャワー 鍋 フライパンフライパン 調理器具調理器具 電子レンジ電子レンジ トースタートースター 炊飯器炊飯器 ケトルケトル 洗濯機洗濯機 ドライヤードライヤー 自転車置き場自転車置き場集合ポスト集合ポスト乾燥機乾燥機バイク置き場バイク置き場
部屋設備 ベッドベッド デスクデスク チェアチェア エアコンエアコン 照明器具照明器具 カーテンカーテン Wi-FiWi-Fi デスクランプデスクランプ ハンガーラックハンガーラック 収納収納 寝具寝具 テレビテレビ冷蔵庫冷蔵庫
住所 東京都杉並区今川2丁目(セキュリティ上の理由から詳細は掲載できません)
備考 ●審査がございます。 ●年齢制限 18歳以上~40歳未満です。
●共益費には光熱費・消耗品・管理費が含まれます。 ●返金はありません。
C6/L126 Tokyoβ 井荻4間取り図

(図面と現況に相違がある場合には現況優先とします)

初期費用計算

条件を入力

┃ 基本情報

事務手数料
家賃 物件によっては各部屋毎の家賃が異なる場合あり
共益費 アパートの場合には5,000円
円(日割)
システム利用料 円(月割)
退去時費用 アパートの場合には38,500円
入居日 入居日はカレンダーから選択してください
退去日

入居日選択

選択:

計算結果

入居日:
退去日:
事務手数料(X)
A月家賃・共益費(日割)
A月システム利用料(月割)
A月分合計(Y)
B月家賃・共益費(日割)
B月システム利用料(月割)
B月分合計(Z)
C月家賃・共益費(日割)
C月システム利用料(月割)
C月分合計
D月家賃・共益費(日割)
D月システム利用料(月割)
D月分合計
退去費用
違約金(=1カ月分の家賃+1カ月分の共益費)
★合計(=X+Y+Z)
⇒ ご予約から3日以内にお支払いください
カテゴリワード:シェアハウス,ルームシェア,ゲストハウス,ワンルーム,アパート,sharehouse,roomshare,guesthouse