L7 TOKYO β 치토세후나바시9

공실여성전용
정기차가계약 (1년)
공실 7실

사진 속 침대나 가구는 실제 방안에 설치되어 있는것들과 다를수 있습니다.

【여성전용】인기 있는 오다큐선. 하라주쿠 18분, 신주쿠 20분, 오모테산도 22분&아카사카 27분입니다♪

오다큐 오다와라선 치토세후나바시역 도보 13분

여성 전용 건물입니다. 단, 이후에「남녀 공용」으로 변경될 가능성이 있습니다. 미리 양해 부탁드립니다.
전문 청소 스태프가 최소 주 1회 공용공간을 청소합니다. 쉐어하우스이므로 개인실 이외의 공간은 공용공간입니다. 부엌, 세탁기, 샤워, Wi-Fi 등은 무료로 자유롭게 이용 가능합니다. 전 16개실 2층 건물입니다. 개인실에는 잠금장치가 설치되어 있으므로 사생활 보호가 가능합니다.

【외국어 응대】당사에는 한국어, 영어, 중국어, 베트남어로 응대할 수 있는 스태프가 있습니다. 각 언어로 언제든지 연락 주세요♪

임대료 싱글룸 (개인) 46,500엔 여성전용
계약 형태 정기차가계약 (1년)
공익비 15,000엔
시스템 이용료 1,500엔 (세금 포함) ※일할 계산은 하지 않습니다.
사무 수수료 30,000엔 (세금 포함)
사례금 / 보증금 0개월 / 0개월
퇴실비용 16,500엔 (세금 포함)
재계약 수수료 11,000엔 (세금 포함)
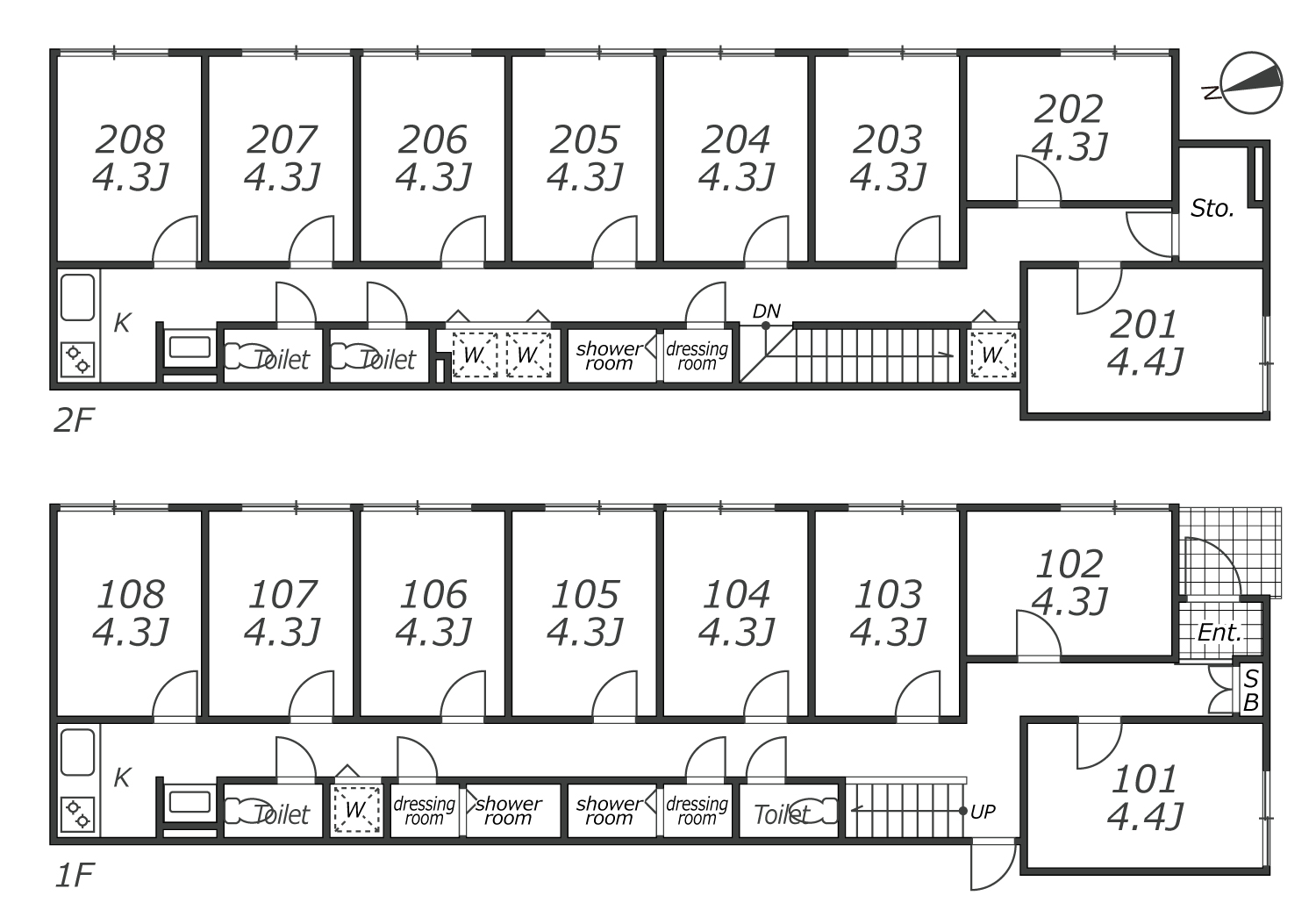
객실 수 전 16실
공용 설비 주방주방 화장실화장실 샤워샤워 냄비냄비 프라이팬프라이팬 조리기구조리기구 전자 레인지전자 레인지 토스터토스터 밥솥밥솥 주전자주전자 세탁기세탁기 드라이어드라이어 자전거 주차장자전거 주차장개별 포스트개별 포스트건조기건조기
개인실 설비 침대침대 데스크데스크 의자의자 에어컨에어컨 조명기구조명기구 커튼커튼 Wi-FiWi-Fi 데스크 램프데스크 램프 행거 랙행거 랙 수납수납 침구류침구류 텔레비전텔레비전냉장고냉장고
주소 東京都世田谷区桜丘3丁目
(보안상의 이유로 자세한 내용은 게재 할 수 없습니다)
비고 ●입주 전 심사가 있습니다. ●연령제한 만 18세~40세 문의바랍니다.
●공과금에는 광열비가 포함되어 있습니다. ●환불 불가
L7 TOKYO β 치토세후나바시9間取り図

(도면과 현황에 차이가있는 경우에는 현 상태를 우선합니다)