F59TOKYO β 都立家政16

有空房
定期契约(1年)
空房8间

照片上的床具、家具等,与实际可能不同

这座房子靠近西武新宿线,步行仅需9分钟即可到达车站。交通非常便利,高田马场站12分钟、西武新宿站15分钟、新大久保站23分钟,池袋站25分钟,周边交通非常便利。

到西武新宿线 都立家政车站 徒步9分

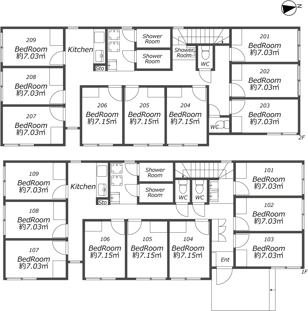
专业清洁人员每周至少清洁一次公共区域。由于是共享住宅,除了个人房间外,所有其他区域都是共享空间。厨房、洗衣机、淋浴、Wi-Fi等设施可以自由使用,全部免费。房屋为两层,共有18个房间,所有房间都配有锁,能确保您的隐私。

【外国人】我们为您提供英文、中文、韩文越南語等多种语言服务。

租金 单人间 41,000日元 男女共用
契约形式 定期契约(1年)
共同服务费 15,000日元
系统使用费 1,500日元(含税) ※不会按照日额计算。
事务手续费 30,000円(含税)
礼金/押金 0个月 / 0个月
退去费用 16,500円(含税)
更新契约手续费 11,000円(含税)
房间数量 全18室
共用设施 厨房厨房 厕所厕所 淋浴淋浴 锅 煎锅煎锅 炊具炊具 微波炉微波炉 烤面包机烤面包机 电饭煲电饭煲 水壶水壶 洗衣机洗衣机 吹风机吹风机
部屋設備 床 桌子桌子 椅子椅子 空调空调 照明设备照明设备 幕 Wi-FiWi-Fi 台灯台灯 衣架衣架 存储存储 床上用品床上用品
地址 東京都中野区鷺宮2
(出于安全原因,无法发布详细信息)
备注 ●需审查
●年龄限制:18岁以上~40岁未满
●共益费包含水电煤、消耗品、管理费等
●预订费用不予退还
F59TOKYO β 都立家政16間取り図

(如果图纸和当前状态之间存在差异,则将优先考虑当前状态。)

F59TOKYO β 都立家政16
咨询