¥46,500
※照片上的床具、家具等,与实际可能不同
到JR埼京线 与野本町车站 徒步10分
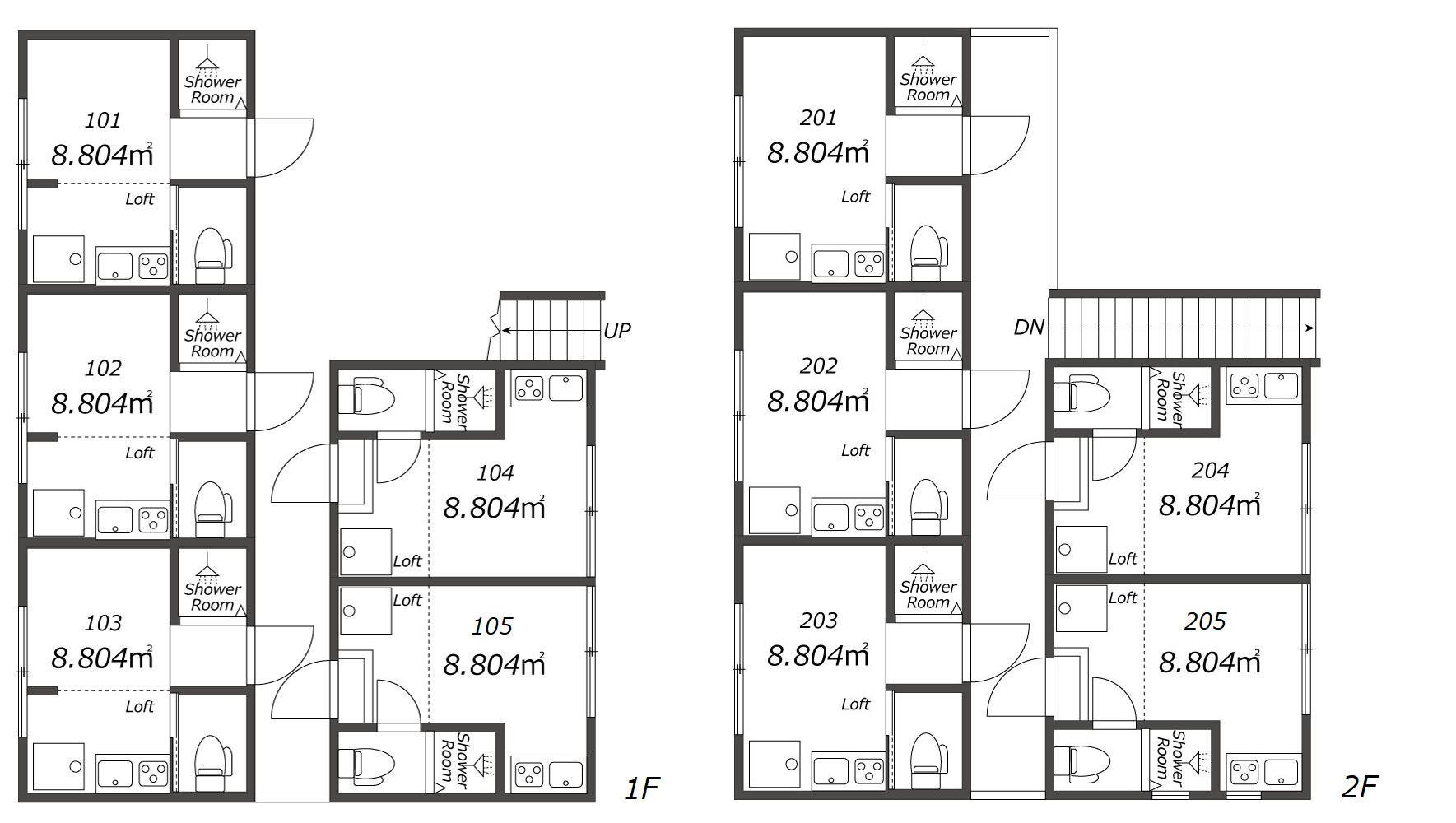
【アパートタイプ物件】全10部屋の2階建て。各部屋にIHキッチン、シャワー、トイレあり。家具・家電(TV、TV台、電子レンジ、冷蔵庫、洗濯機、カーテン、AC、照明、インターホン)付きです。
※電気ガス水道はお客様にて契約していただく必要がございます。
| 租金 | 個室(アパート) 46,500日元 男女共用 |
|---|---|
| 契约形式 | 定期契约(1年) |
| 共同服务费 | 5,000日元 |
| 系统使用费 | 1,500日元(含税) ※不会按照日额计算。 |
| 事务手续费 | 30,000円(含税) |
| 礼金/押金 | 0个月 / 0个月 |
| 退去费用 | 38,500円(含税) |
| 更新契约手续费 | 11,000円(含税) |
| 房间数量 | 全10室 |
| 地址 | 埼玉県さいたま市中央区桜丘2丁目 (出于安全原因,无法发布详细信息) |
| 备注 | ●需审查 ●年龄限制:18岁以上~40岁未满 ●共益费包含水电煤、消耗品、管理费等 ●预订费用不予退还 |
(如果图纸和当前状态之间存在差异,则将优先考虑当前状态。)
| 事务手续费 | 日元 |
|
房租
不同房间的租金可能有所不同
|
日元 |
|
共益费
公寓为5,000日元
|
日元(按日计算) |
| 系统使用费 | 日元(按月计算) |
|
退房费用
公寓为38,500日元
|
日元 |
|
入住日期
请从日历中选择入住日期
|
— |
|
退房日期
请从日历中选择退房日期
|
— |
| 事务手续费(X) | 日元 |
| A月房租+共益费(按日计算) | 日元 |
| A月系统使用费(按月计算) | 日元 |
| A月合计(Y) | 日元 |
| B月房租+共益费(按日计算) | 日元 |
| B月系统使用费(按月计算) | 日元 |
| B月合计(Z) | 日元 |
| C月房租+共益费(按日计算) | 日元 |
| C月系统使用费(按月计算) | 日元 |
| C月合计 | 日元 |
| D月房租+共益费(按日计算) | 日元 |
| D月系统使用费(按月计算) | 日元 |
| D月合计 | 日元 |
| 退房费用 | 日元 |
| 违约金(=1个月房租+1个月共益费) | 日元 |