K354TOKYO β 豪徳寺

有空房女性专用
定期契约(1年)
空房8间

照片上的床具、家具等,与实际可能不同

人气的小田急线。无换乘到新宿15分钟。

到小田急小田原线 豪德寺车站 徒步16分

专业工作人员每周至少清洁一次公共区域。
由于是共享住宅,除私人房间外,其他区域均为共用空间。厨房、洗衣机、淋浴、Wi-Fi 等均可自由使用,全部免费。
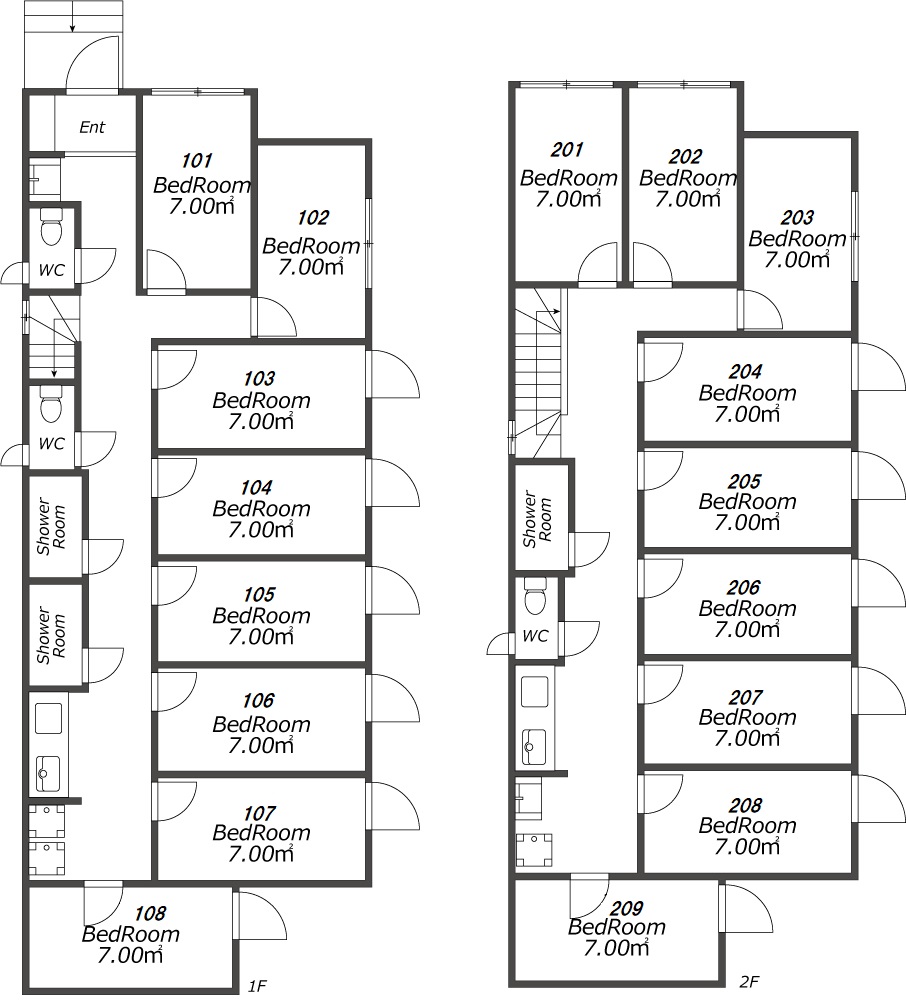
共有18间房,二层楼。所有房间均配有锁,能够妥善保护个人隐私。

【外国人】我们为您提供英文、中文、韩文越南語等多种语言服务。

租金 单人间 48,000日元 女性专用
契约形式 定期契约(1年)
共同服务费 15,000日元
系统使用费 1,500日元(含税) ※不会按照日额计算。
事务手续费 30,000円(含税)
礼金/押金 0个月 / 0个月
退去费用 16,500円(含税)
更新契约手续费 11,000円(含税)
房间数量 全18室
共用设施 厨房厨房 厕所厕所 淋浴淋浴 锅 煎锅煎锅 炊具炊具 微波炉微波炉 烤面包机烤面包机 电饭煲电饭煲 水壶水壶 洗衣机洗衣机 吹风机吹风机
部屋設備 床 桌子桌子 椅子椅子 空调空调 照明设备照明设备 幕 Wi-FiWi-Fi 台灯台灯 衣架衣架 存储存储 床上用品床上用品
地址 東京都世田谷区梅丘2丁目
(出于安全原因,无法发布详细信息)
备注 ●需审查
●年龄限制:18岁以上~40岁未满
●共益费包含水电煤、消耗品、管理费等
●预订费用不予退还
K354TOKYO β 豪徳寺間取り図

(如果图纸和当前状态之间存在差异,则将优先考虑当前状态。)

入住费用计算

请输入条件

┃ 基本信息

事务手续费 日元
房租 不同房间的租金可能有所不同
日元
共益费 公寓为5,000日元
日元(按日计算)
系统使用费 日元(按月计算)
退房费用 公寓为38,500日元
日元
入住日期 请从日历中选择入住日期
退房日期

选择入住日期

已选:

计算结果

入住日期://
退房日期://
事务手续费(X)日元
A月房租+共益费(按日计算)日元
A月系统使用费(按月计算)日元
A月合计(Y)日元
B月房租+共益费(按日计算)日元
B月系统使用费(按月计算)日元
B月合计(Z)日元
C月房租+共益费(按日计算)日元
C月系统使用费(按月计算)日元
C月合计日元
D月房租+共益费(按日计算)日元
D月系统使用费(按月计算)日元
D月合计日元
退房费用日元
违约金(=1个月房租+1个月共益费)日元
★合计(=X+Y+Z)
日元
⇒ 请在预约后3天内完成支付

K354TOKYO β 豪徳寺
咨询