L207 TOKYO β 上板橋4

有空房
定期契约(1年)
空房7间

照片上的床具、家具等,与实际可能不同

热门的东武东上线,步行到车站仅需8分钟。从池袋仅需14分钟,到新宿24分钟,到高田马场25分钟,到涩谷31分钟。

到东武东上线 上板桥车站 徒步11分

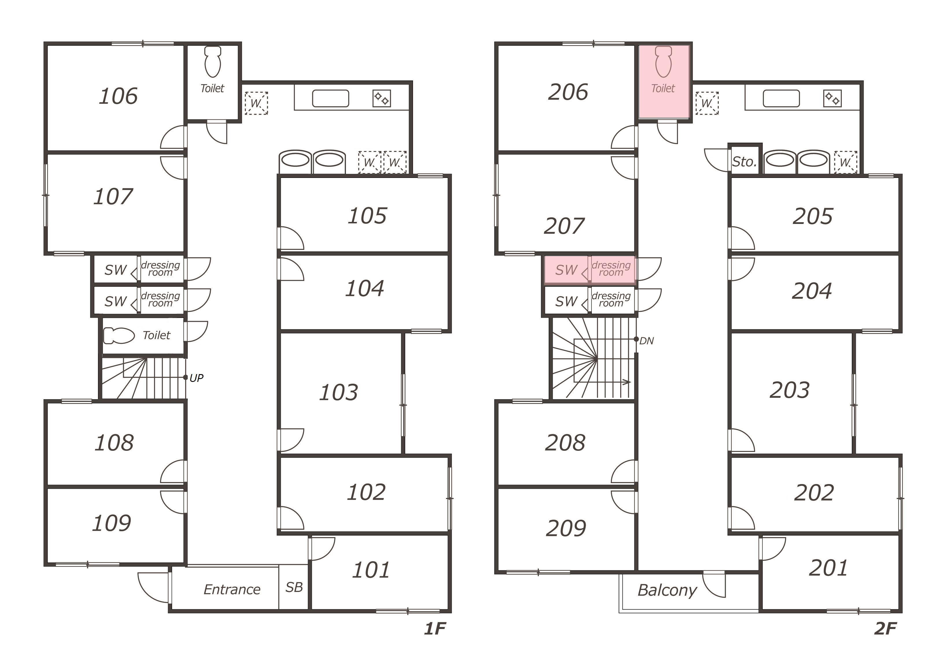
专业工作人员每周至少清洁一次公共区域。由于是共享住宅,除了私人房间外,其他区域全部是共用的。厨房、洗衣机、淋浴、Wi-Fi等设施可以自由使用,且全部免费。整栋楼为两层,共有18个房间。所有房间都配有锁,并且能够很好地保护您的私人空间。

【外国人】我们为您提供英文、中文、韩文越南語等多种语言服务。

租金 单人间 39,000日元 男女共用
契约形式 定期契约(1年)
共同服务费 15,000日元
系统使用费 1,500日元(含税) ※不会按照日额计算。
事务手续费 30,000円(含税)
礼金/押金 0个月 / 0个月
退去费用 16,500円(含税)
更新契约手续费 11,000円(含税)
房间数量 全18室
共用设施 厨房厨房 厕所厕所 淋浴淋浴 锅 煎锅煎锅 炊具炊具 微波炉微波炉 烤面包机烤面包机 电饭煲电饭煲 水壶水壶 洗衣机洗衣机 吹风机吹风机 可停放自行车可停放自行车
部屋設備 床 桌子桌子 椅子椅子 空调空调 照明设备照明设备 幕 Wi-FiWi-Fi 台灯台灯 衣架衣架 存储存储 床上用品床上用品 电视电视冰箱冰箱
地址 東京都板橋区若木2丁目
(出于安全原因,无法发布详细信息)
备注 ●需审查
●年龄限制:18岁以上~40岁未满
●共益费包含水电煤、消耗品、管理费等
●房间预订费用不予退还
L207 TOKYO β 上板橋4間取り図

(如果图纸和当前状态之间存在差异,则将优先考虑当前状态。)

L207 TOKYO β 上板橋4
咨询