L64 TOKYO β 나카이1

공실여성전용
정기차가계약 (1년)
공실 7실

사진 속 침대나 가구는 실제 방안에 설치되어 있는것들과 다를수 있습니다.

【여성전용】세이부 신주쿠선&도쿄 메트로 오에도선 2노선 이용 가능합니다♪

세이부 신주쿠선 나카이역 도보 7분
도영 지하철 오에도선 나카이역 도보 7분

여성 전용 건물입니다. 단, 이후에「남녀 공용」으로 변경될 가능성이 있습니다. 미리 양해 부탁드립니다.
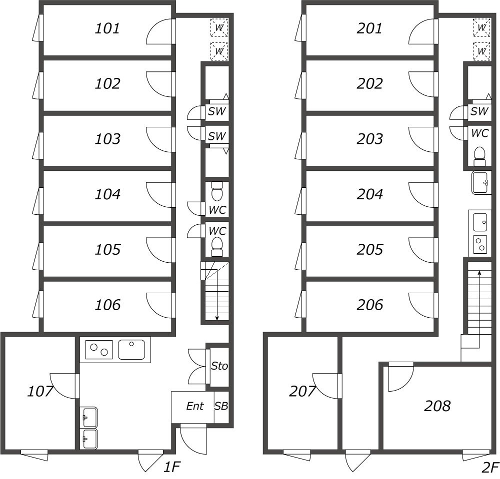
전문 청소 스태프가 최소 주 1회 공용공간을 청소합니다. 쉐어하우스이므로 개인실 이외의 공간은 공용공간입니다. 부엌, 세탁기, 샤워, Wi-Fi 등은 무료로 자유롭게 이용 가능합니다. 전 15개실 2층 건물입니다. 개인실에는 잠금장치가 설치되어 있으므로 사생활 보호가 가능합니다.

【외국어 응대】당사에는 한국어, 영어, 중국어, 베트남어로 응대할 수 있는 스태프가 있습니다. 각 언어로 언제든지 연락 주세요♪

임대료 싱글룸 (개인) 56,500엔 여성전용
계약 형태 정기차가계약 (1년)
공익비 15,000엔
시스템 이용료 1,500엔 (세금 포함) ※일할 계산은 하지 않습니다.
사무 수수료 30,000엔 (세금 포함)
사례금 / 보증금 0개월 / 0개월
퇴실비용 16,500엔 (세금 포함)
재계약 수수료 11,000엔 (세금 포함)
객실 수 전 15실
공용 설비 주방주방 화장실화장실 샤워샤워 냄비냄비 프라이팬프라이팬 조리기구조리기구 전자 레인지전자 레인지 토스터토스터 밥솥밥솥 주전자주전자 세탁기세탁기 드라이어드라이어 개별 포스트개별 포스트건조기건조기
개인실 설비 침대침대 데스크데스크 의자의자 에어컨에어컨 조명기구조명기구 커튼커튼 Wi-FiWi-Fi 데스크 램프데스크 램프 행거 랙행거 랙 수납수납 침구류침구류 냉장고냉장고
주소 東京都新宿区中井1丁目
(보안상의 이유로 자세한 내용은 게재 할 수 없습니다)
비고 ●입주 전 심사가 있습니다. ●연령제한 만 18세~40세 문의바랍니다.
●공과금에는 광열비가 포함되어 있습니다. ●환불 불가
L64 TOKYO β 나카이1間取り図

(도면과 현황에 차이가있는 경우에는 현 상태를 우선합니다)