L64 TOKYO β Nakai 1

VacantWomen-only
1 year fixed-term contract
Vacant 7

Furniture and bedding in the photo do not necessarily coorespond to the actual setting in the room when you move in.

【Female Only】Two lines available: Seibu Shinjuku Line & Toei Oedo Line.

7 minutes walk to Seibu-Shinjuku Line Nakai station
7 minutes walk to Toei Oedo Line Nakai station

【Female only】※Please note that the house may become unisex in the future.

【Property Description】
■A two-story share house with 15 rooms in total. Each room is lockable with a key!
■Other than the private rooms, all areas are shared. The shared facilities are provided for free.
■The shared areas are cleaned once a week, including the toilets, shower rooms, and kitchen area.

【Language support】
■Our company provides multi-language support in English, Chinese, Korean, and Vietnamese.

Rent single 56,500yen Women-only
Type of contract 1 year fixed-term contract
Common service fee 15,000yen
System fee 1,500 yen (Including tax) ※No pro-rated calculation
Administrative fee 30,000 JPY (tax included)
Key money / Deposit 0month / 0month
Cancellation fee 16,500 JPY (tax included)
Contract renewal fee 11,000 JPY (tax included)
Number of rooms 15 rooms in total
Shared facilities kitchenKitchen ToiletToilet ShowerShower SaucepanSaucepan Frying panFrying pan KitchenwareKitchenware MicrowaveMicrowave ToasterToaster Rice cookerRice cooker KettleKettle Washing machineWashing machine HairdryerHairdryer Individual mailboxIndividual mailboxDrying machineDrying machine
Room facilities BedBed DeskDesk ChairChair Air conditionerAir conditioner Lighting equipmentLighting equipment CurtainCurtain Wi-FiWi-Fi Desk lampDesk lamp Clothes rackClothes rack StorageStorage BeddingBedding RefrigeratorRefrigerator
Street address Nakai, Shinjukuku, Tokyo
*Details cannot be posted for security reasons.
Remarks ●There is an examination to judge your eligibility.
●Age limit: 18-39 years old.
●Utility fee includes: gas, water, electricity, daily consumables, maintenance charge
●Non-refundable.
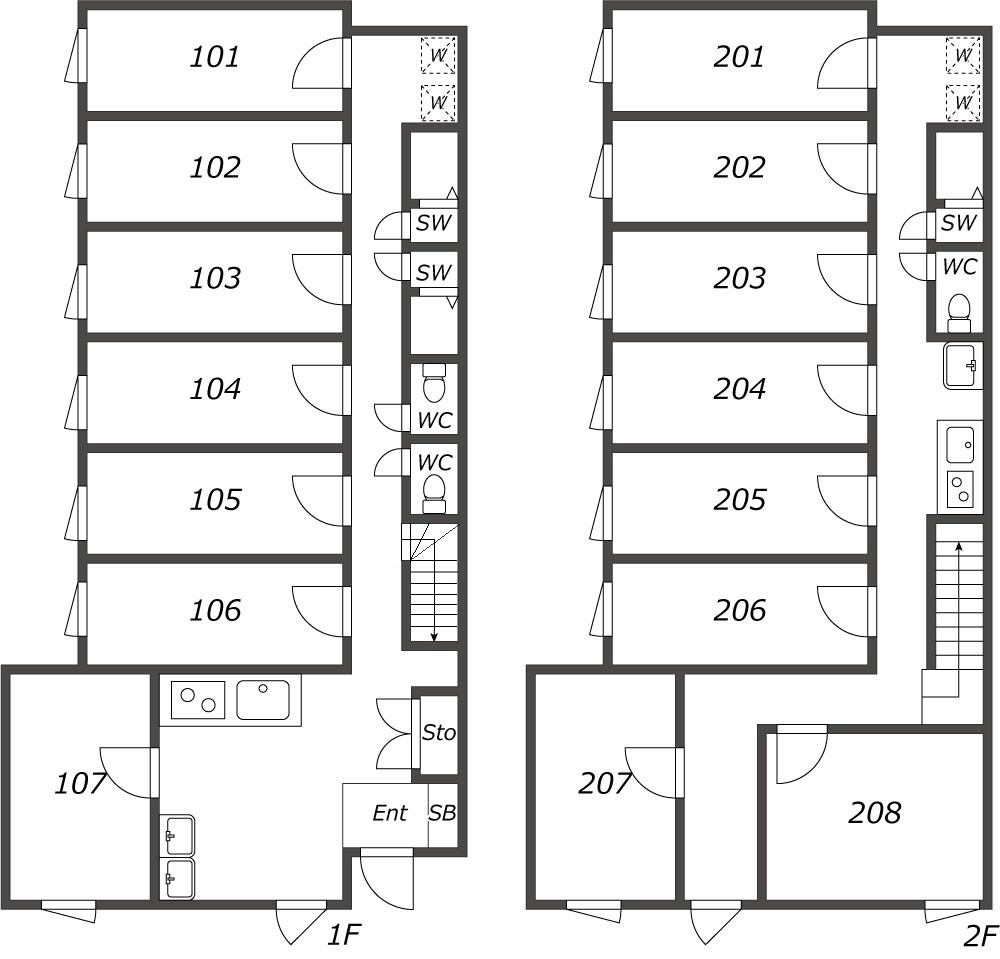
L64 TOKYO β Nakai 1間取り図

(If there is a difference between the drawing and the current status, the current status will be given priority.)

Initial Cost Calculator

Enter Conditions

┃ Basic Information

Administrative Fee yen
Rent Rent may vary depending on the room
yen
Maintenance Fee ¥5,000 for apartments
yen(prorated)
System Fee yen(monthly)
Move-out Fee ¥38,500 for apartments
yen
Move-in Date Please select the move-in date from the calendar
Move-out Date

Select Move-in Date

Selected:
Sun
Mon
Tue
Wed
Thu
Fri
Sat

Calculation Results

Move-in Date: //
Move-out Date: //
Administrative Fee (X) yen
A Month Rent & Maintenance Fee (prorated) yen
A Month System Fee (monthly) yen
A Month Total (Y) yen
B Month Rent & Maintenance Fee (prorated) yen
B Month System Fee (monthly) yen
B Month Total (Z) yen
C Month Rent & Maintenance Fee (prorated) yen
C Month System Fee (monthly) yen
C Month Total yen
D Month Rent & Maintenance Fee (prorated) yen
D Month System Fee (monthly) yen
D Month Total yen
Move-out Cost yen
Penalty (1 month rent + 1 month maintenance fee) yen
★ Total (= X + Y + Z)
yen
⇒ Please complete payment within 3 days of booking