K187 TOKYO β Matsubara 1

phòng trống
Thuê định kỳ (1 năm)
Trống 4

Ảnh giường và vật dụng so với đồ thực tế trong phòng có thể có sự khác nhau.

【Dành riêng cho nữ】Có thể sử dụng 2 tuyến Keio và Tokyu Setagaya.

Tokyu Setagaya Line Ga Matsubara đi bộ 7 phút
Keio Line Ga Shimo-takaido đi bộ 10 phút

【Dành cho nữ】 Trong tương lai có khả năng sẽ sử dụng cho cả nam và nữ. Xin quý khách lưu ý

Khu vực chung được dọn dẹp hàng tuần. Vì đây là nhà chung (share house), nên ngoài phòng riêng thì tất cả các khu vực khác đều là không gian dùng chung. Toàn bộ bếp, máy giặt, vòi sen, Wi-Fi,...đều miễn phí. Nhà có 2 tầng và 10 phòng. Tất cả các phòng đều có khóa để đảm bảo không gian riêng. 

◆Công ty chúng tôi có nhiều nhân viên thành thạo Tiếng Anh, Tiếng Trung, Tiếng Hàn, Tiếng Việt.

Cho thuê Phòng đơn 50,500Yên Dành cho nam và nữ
Hình thức hợp đồng Thuê định kỳ (1 năm)
Phí dịch vụ chung 15,000Yên
Phí hệ thống 1,500 yen (Đã có thuế) ※Không chia theo ngày.
Phí hành chính 30,000 yên (đã có thuế)
Tiền lễ/Tiền cọc 0 tháng / 0 tháng
Phí ra nhà 16,500 yên (đã có thuế)
Phí tái ký hợp đồng 11,000 yên (đã có thuế)
Số phòng 10 phòng
Cơ sở dùng chung Nhà bếpNhà bếp Nhà vệ sinhNhà vệ sinh Vòi hoa senVòi hoa sen NồiNồi Chảo chiênChảo chiên Đồ nấu nướngĐồ nấu nướng Lò vi sóngLò vi sóng Máy nướng bánh mìMáy nướng bánh mì Nồi cơm điệnNồi cơm điện Ấm đun nướcẤm đun nước Máy giặtMáy giặt Máy sấy tócMáy sấy tóc Hộp thư chungHộp thư chungMáy sấyMáy sấy
Tiện nghi phòng GiườngGiường Bàn làm việcBàn làm việc GhếGhế Máy lạnhMáy lạnh Thiết bị chiếu sángThiết bị chiếu sáng RèmRèm Wi-FiWi-Fi Đèn bànĐèn bàn Giá treo quần áoGiá treo quần áo Lưu trữLưu trữ Đồ gia dụngĐồ gia dụng TVTVTủ lạnhTủ lạnh
Địa chỉ Akatsutsumi, Setagayaku, Tokyo
(*Thông tin chi tiết không thể được đăng vì lý do bảo mật)
Nhận xét ●Có kiểm tra thông tin cơ bản.
●Giới hạn tuổi từ 18 đến 39 tuổi.
●Chi phí chung bao gồm phí sinh hoạt (điện, nước, ga...), phí tiêu thụ và chi phí quản lý.
●Không hoàn lại tiền trong bất kì trường hợp nào.
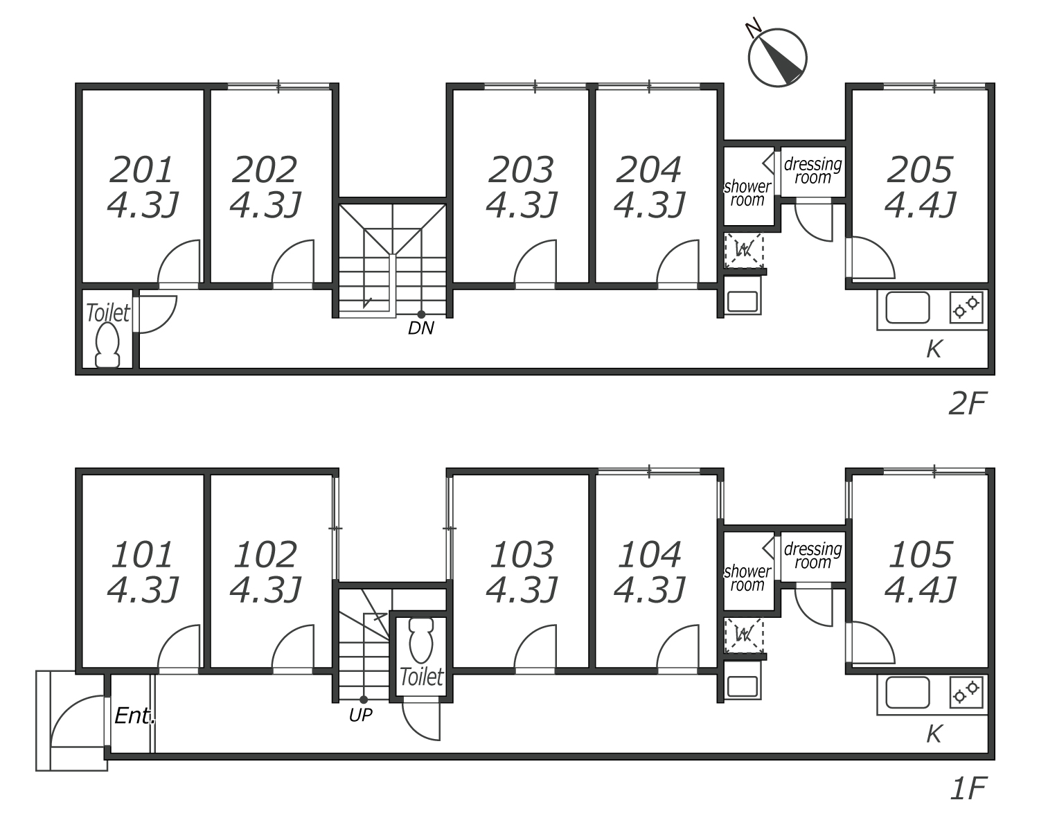
K187 TOKYO β Matsubara 1間取り図

(Nếu có sự khác biệt giữa bản vẽ và trạng thái hiện tại, trạng thái hiện tại sẽ được ưu tiên.)

Tính chi phí ban đầu

Nhập điều kiện

┃ Thông tin cơ bản

Phí hành chính yên
Tiền thuê Tiền thuê có thể khác nhau tùy từng phòng
yên
Phí quản lý 5.000 yên đối với căn hộ
yên(tính theo ngày)
Phí hệ thống yên(theo tháng)
Phí khi trả phòng 38.500 yên đối với căn hộ
yên
Ngày vào ở Vui lòng chọn ngày vào ở từ lịch
Ngày trả phòng

Chọn ngày vào ở

Đã chọn:
CN
T2
T3
T4
T5
T6
T7

Kết quả tính toán

Ngày vào ở: //
Ngày trả phòng: //
Phí hành chính (X) yên
A tháng tiền thuê & phí quản lý (tính theo ngày) yên
A tháng phí hệ thống (theo tháng) yên
A tháng tổng (Y) yên
B tháng tiền thuê & phí quản lý (tính theo ngày) yên
B tháng phí hệ thống (theo tháng) yên
B tháng tổng (Z) yên
C tháng tiền thuê & phí quản lý (tính theo ngày) yên
C tháng phí hệ thống (theo tháng) yên
C tháng tổng yên
D tháng tiền thuê & phí quản lý (tính theo ngày) yên
D tháng phí hệ thống (theo tháng) yên
D tháng tổng yên
Chi phí trả phòng yên
Phạt (1 tháng tiền thuê + 1 tháng phí quản lý) yên
★ Tổng cộng (= X + Y + Z)
yên
⇒ Vui lòng thanh toán trong vòng 3 ngày kể từ khi đặt chỗ